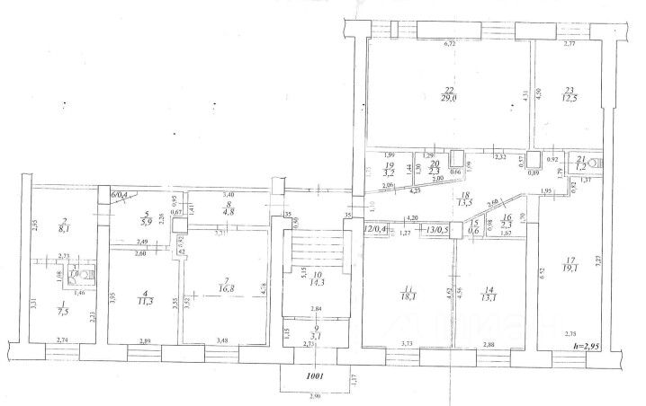
Код объекта: 1032145. В продаже шикарное пространство для вашего бизнеса. Объект расположен в интенсивно развивающем районе, большой поток клиентов гарантирован! По плану помещения видно, что помещение разделено на две зоны, где вы можете развивать два направления бизнеса. Несколько мокрых зон, что важно для салонов красоты, пищевого производства, магазинов. Дом расположен по оживленной дороге, поэтому вывеску вашего предприятия будут видеть большое количество людей. Идея для салона красоты: когда клиент пришел на процедуры, детскую занятость можно решить развлечениями в рядом расположенными ДК Железнодорожник, Детский центр ТЦ Плаза. Отличное пространство для КОВОРКИНГА, ХОСТЕЛА. Возможен вариант долгосрочной аренды.
Код объекта: 1032145. В продаже шикарное пространство для вашего бизнеса. Объект расположен в интенсивно развивающем районе, большой поток клиентов гарантирован! По плану помещения видно, что помещение разделено на две зоны, где вы можете развивать два направления бизнеса. Несколько мокрых зон, что важно для салонов красоты, пищевого производства, магазинов. Дом расположен по оживленной дороге, поэтому вывеску вашего предприятия будут видеть большое количество людей. Идея для салона красоты: когда клиент пришел на процедуры, детскую занятость можно решить развлечениями в рядом расположенными ДК Железнодорожник, Детский центр ТЦ Плаза. Отличное пространство для КОВОРКИНГА, ХОСТЕЛА. Возможен вариант долгосрочной аренды. Все вышеперечисленные достоинства дают возможность для легкого старта и процветания вашего бизнеса. С заинтересованным покупателем обсудим ТОРГ, возможна рассрочка. Рекомендую скорейшего контакта с агентом и запись на просмотр, агент Елена Варцева.