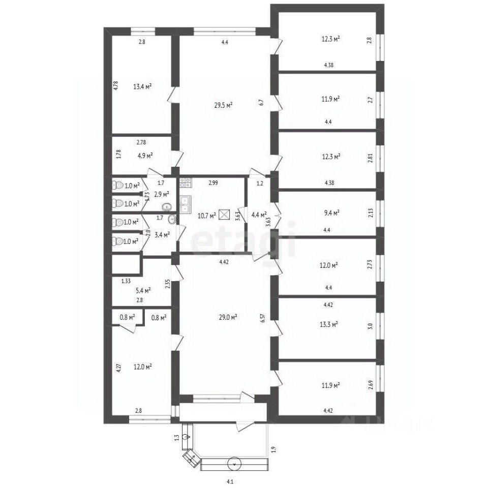
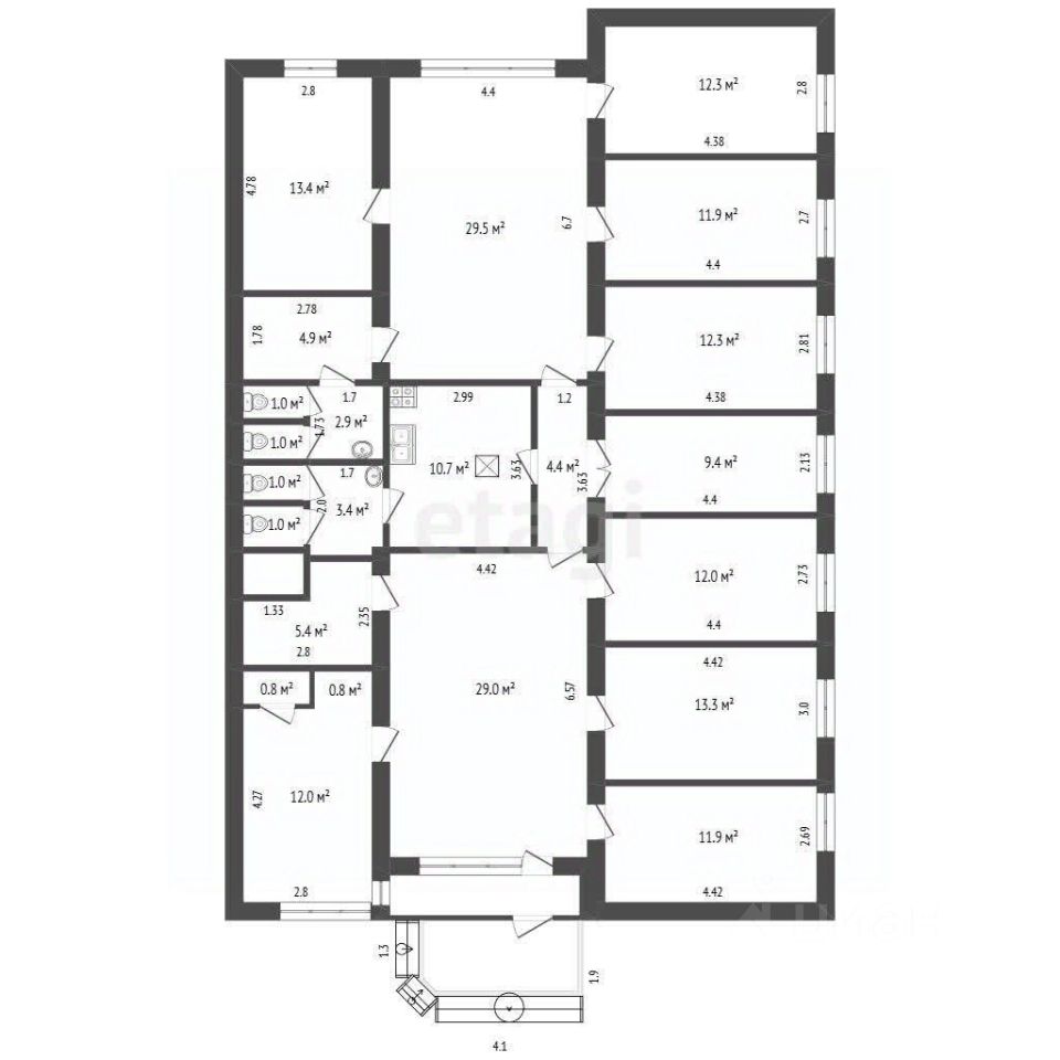
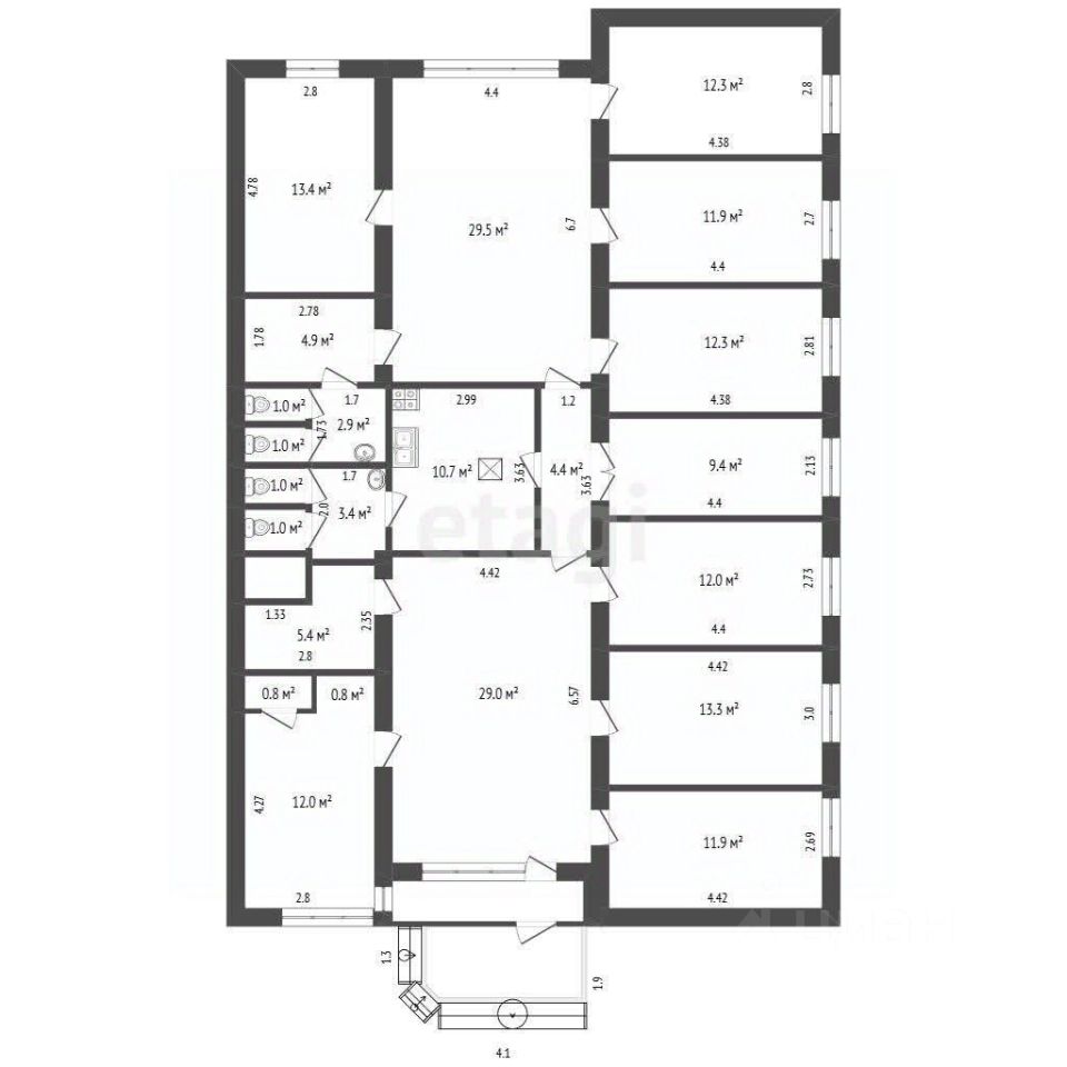
Помещение свободного назначения общей площадью 214 кв. м. расположено на первом этаже и обладает ключевым преимуществом — изолированным входом, что обеспечивает полную автономию и конфиденциальность. Объект был официально переведен из жилого в нежилой фонд, все необходимые изменения согласованы. На текущий момент пространство функционально обустроено под офис: здесь есть просторная рабочая зона, изолированная комната отдыха, оборудованная кухня и санузел. Дополнительным удобством является наличие подсобного помещения для хранения архивов или техники. Благодаря удачному расположению и хорошим подъездным путям объект легко доступен как на личном, так и на общественном транспорте.
Помещение свободного назначения общей площадью 214 кв. м. расположено на первом этаже и обладает ключевым преимуществом — изолированным входом, что обеспечивает полную автономию и конфиденциальность. Объект был официально переведен из жилого в нежилой фонд, все необходимые изменения согласованы. На текущий момент пространство функционально обустроено под офис: здесь есть просторная рабочая зона, изолированная комната отдыха, оборудованная кухня и санузел. Дополнительным удобством является наличие подсобного помещения для хранения архивов или техники. Благодаря удачному расположению и хорошим подъездным путям объект легко доступен как на личном, так и на общественном транспорте. Планировка и высокий потолок создают ощущение простора и позволяют адаптировать пространство под конкретные бизнес-задачи. Важной опцией является потенциальная возможность обратного перевода в жилой фонд, что открывает перспективу создания уникальной квартиры повышенной комфортности с собственным входом. Это решение универсально для тех, кто ищет готовое решение для бизнеса с потенциалом для последующей трансформации под личные нужды.